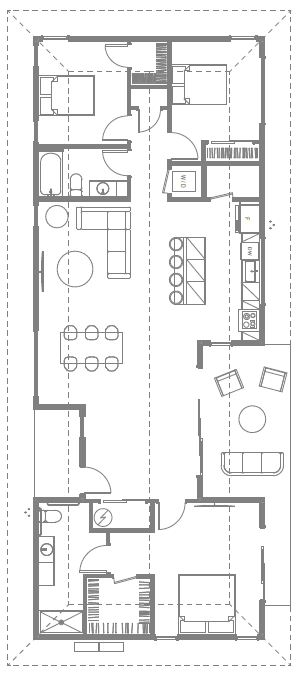
3 Bedrooms | 2 Baths | 1500-1700 SF

SPECIFICATIONS
Luala‘ilua builds on the calm order of its smaller counterpart by extending it. The name, meaning “the extended peace,” reflects a longer, more generous expression of the same linear idea, allowing the home to stretch comfortably across the site without losing its sense of balance.
Private spaces and open, view-oriented areas are arranged in a deliberate row, reinforcing separation while maintaining continuity. By lengthening this organization, the plan supports a larger household without introducing complexity or visual noise. At 3 bedrooms and 2 baths, Luala‘ilua offers added capacity while preserving the quiet, composed character that defines the design.