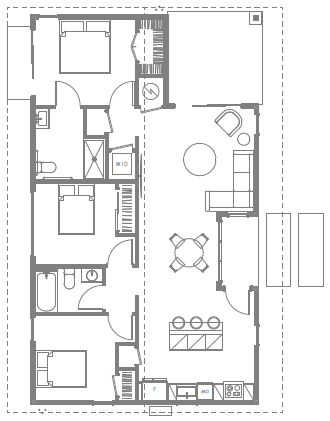
3 Bedrooms | 2 Baths | 1000-1200 SF

SPECIFICATIONS
Aukahi is defined by clarity, ease, and connection. Its name means “even” and “flowing together,” a concept reflected in a layout where spaces align naturally and movement through the home feels intuitive rather than forced.
The interior prioritizes efficiency without feeling tight. Living, dining, and kitchen spaces work together as a single, unified zone. Clean lines, straightforward geometry, and clear circulation makes the home equally well suited for families, shared households, or flexible living arrangements.
Aukahi supports modern life without excess. Its thoughtful proportions and cohesive layout creates an environment where everything has a place and works together as one.